
Lieu:
Lyon, France
Mission:
EXE
Budget :
1.0 M €
Client:
Laquet SAS
Année:
2024
Architecte:
LBA
Paysagiste:
BASE
Conception artistique:
Longeur :
52 m
Matériaux :
Béton armé
en cours
livré
concours

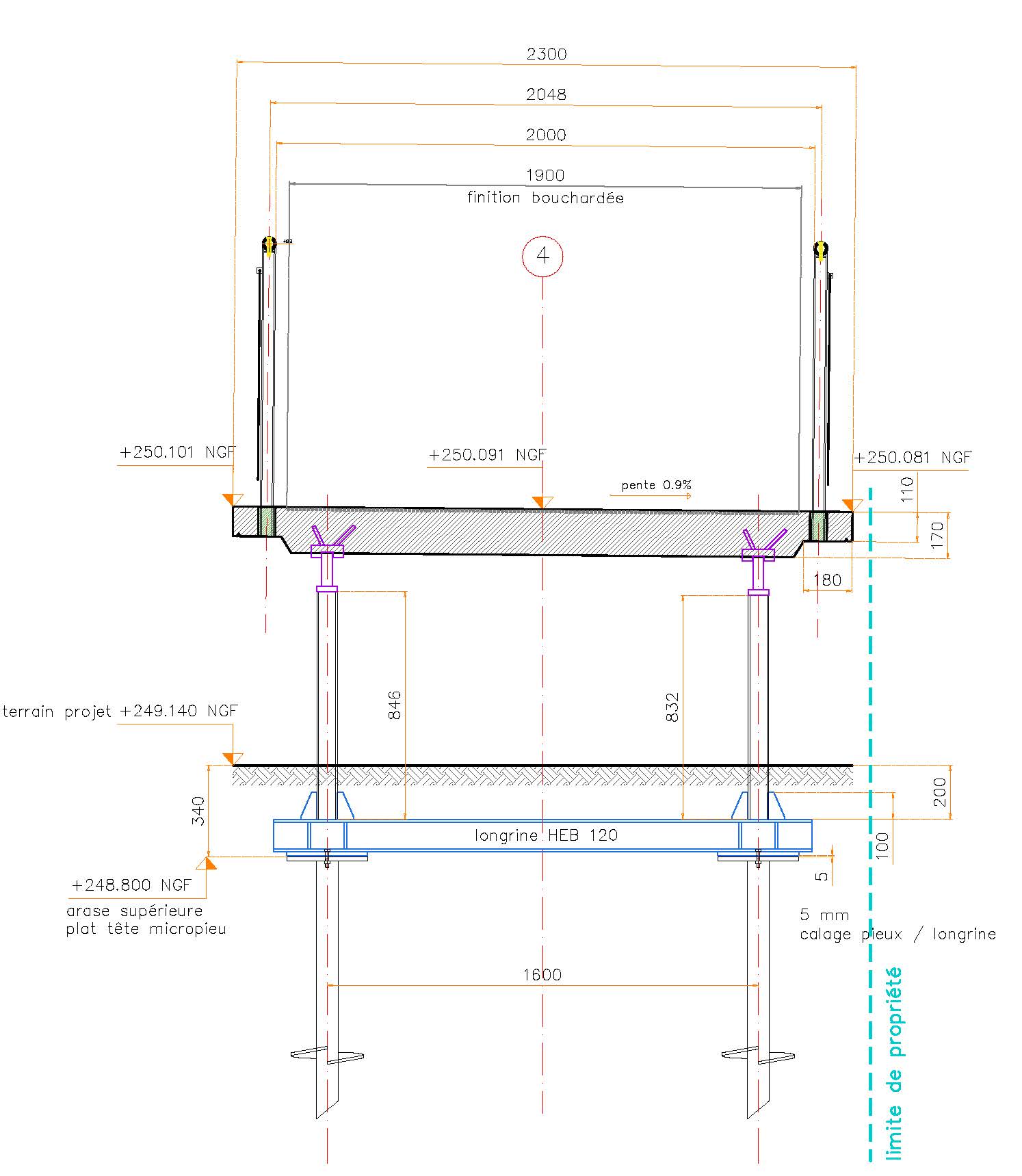
Détail du projet
BI Ingénierie assure les études d’exécution pour la passerelle pour piétons et vélo dans le parc de la Sauvegarde à Lyon. Le passerelle est une structure en estacade avec un tracé àpans coupés de 4 sections, d’une longueur totale de 52 m. L’ouvrage se compose d’une dalle en béton armé posée sur une série de « portiques inversés » – tubes ronds en acier galvanisé fixés sur des longrines en acier galvanisé. Le tablier est posé sur une série d’appuis métalliques en tête des pilettes développés pour ce projet et assimilables à desrotules.



